山东盛通环保科技有限公司
联系人:宋经理
电话:13455358195
传真: 0533-8179019
地址:淄博市周村区南郊镇工业园
SDS系列隧道射流风机
一、产品简介
1、用途:
SDS系列隧道射流风机主要用于公路、铁路等交通隧道纵向射流通风,利用射流风机产生的高速喷射气流,推动隧道内的空气顺着射流方向运动,从而实现通风换气,但隧道内出现火灾是可实现排烟目的,射流风机输送介质为空气,使用环境温度为-25℃~50℃之间,介质中含尘量和其他固体杂质的含量不大于150mg/m3,并无粘性、无纤维物质。隧道内发生火灾时,在环境温度为280℃高温下可连续运行两小时。
2、该风机主要特点为:
①耐腐蚀、抗高温、不断裂、无氧化、出口风速快、风量大、噪音低。
②运转平稳、维修简单、外形美观、使用方便。
③可逆射流风机可双向通风,当逆向通风时可达到且超过正向通风量的98%,以确保隧道内充盈新鲜的空气。
④我公司生产的SDS射流风机可根据用户需求采用我公司开发的高效叶轮或国外进口风机叶轮。亦可根据用户需求配用双速电动机,分别用于强制排风(烟气)或低速通风保持节能运行状态。
二、技术工艺
1、风机叶轮强度
该系列风机具有噪声低、抗腐蚀、耐高温等特点。风机叶片与轮毂均采用铝合金材料,金属模具整体压铸成型,经金相分析和X光射线探伤检验,保证叶片和轮毂的强度,叶轮采用可调节叶片,便于风机的风量调节,满足不同工况的要求。我公司消化、吸收国外公司技术,采用“二次计算法”,该技术能计算确定叶轮危险截面的应力,为风机转子的平稳、可靠运行提供了有力的保障。
2、风机流量、流速的分析
通过软件计算、分析,对风机的风量、流速进行检测,模拟现场条件,保证满足要求参数从而达到满足现场条件需求。
3、风机结构
3.1集流器:集流器为流线型,可使进入风机的气流均匀平稳,提高风机的运行效率和降低风机的噪声。
3.2消声器:风机两端均具有消声器,内填充特殊防水吸声材料,使风机运行噪音大大降低,符合环保要求。我公司根据对各类风机运行现场噪声源进行实际测试,所取得的特性资料来确定在哪些范围内需要多大的消声量作为设计吸声体及流体通道的只要依据,同时采用了具有较大吸声材料饰面的狭矩形通道,以增强吸声效果。在风机的噪声源最大声级时,特性不止一种,而对于不同特性,对消声量的要求也不同,为此该风机采用阻抗声流型,采用了对高、中噪声吸音消声作用的阻式结构及中、低噪声起消声降音作用的抗式结构。同时在阻式通道中采用高低两种吸音消声区,以最大限度的增宽消声带,以实现消声降噪效果。消声器为两层圆筒结构,采用镀锌穿孔板(亦可根据要求采用1cr13的不锈钢材质),提高风机抗腐蚀和除锈级别,内筒外包覆高效吸声材料,外筒采用优质镀锌钢板,各部零部件之间通过不锈钢拉铆钉和螺钉联接,避免了烧焊对镀锌层的破坏,保证外形美观大方,并有效控制气流流动动力噪声和辐射噪声。噪声测试范围:与风机出口轴线成45°夹角,距离10米处测量其A声级且小于75dB(A)。
1D消声器:风机两端的消声器长度为风机叶轮直径的1倍(未作特殊说明和要求,风机出厂配置均为1D消声器)。
2D消声器:风机两端的消声器长度为风机叶轮直径的2倍(当噪声指标要求高时,可选用2D消音器,能有效降低噪音值)。
3.3叶轮:机翼型叶片与轮毂由铝合金铸造而成,叶片静叶可调,可根据隧道情况调节风机风量。其中,轮毂采用ZG230-450铸钢而成,叶片采用ZL104铝硅合金精密铸造。其安装角度根据用户不同性能要求调整,并经严格工艺制造和严格静、动平衡校正,超转速实验,运转平衡可靠,平衡精度可达G2.0级(振动值≤2.0mm/s)。反风效率高,反向流量≥正向流量的98%,风机从全速正转到全速反转,或从全速反转到全速正传,换向的最长断电时间30s。任何时候,在流过风机的空气温度为280℃,15min可以换风4次。
3.4机壳:优质碳钢弯曲成型并焊接,并采用数控激光下料,保证加工尺寸及外形美观,电机支撑在内部。支架、壳体等钢制结构都经过热渗镀锌,主机防腐喷塑处理,能够在280℃的环境下运行两小时,而不冒烟或释放有毒气体,满足隧道通风的需要。
3.5电动机:采用射流风机专用风机,该电机为鼠笼全封闭式,与轮毂直连,工作电压380V,频率50Hz,绝缘等级F级(或H级),防护等级IP54(或IP55),由电动机引出电缆可接至风机本体外壳上的接线盒,电动机带有润滑油脂嘴,外接导管接至风机本体机壳上的润滑油脂嘴。电机可在-30℃~50℃的环境下运行,适用于海拔高度3500m工作运行要求,轴承采用密封润滑脂润滑,能承受双向推力,可长期连续运行工作。当隧道发生火灾时,在环境温度为280℃高温时可以连续运行两小时。若需在高海拔地区使用,请订货时告知。若配用双速电机,可在通风良好的情况下用低速,空气环境污浊或发生火灾时用高速,以达到节能目的。
三、平衡校正
工程中的各种回转体,由于材质不均匀或毛坯缺陷、加工及装配中产生的误差,甚至设计时就具有非对称的几何形状等多种因素,使得回转体在旋转时,其上每个微小质点产生的离心惯性力不能相互抵消,离心惯性力通过轴承作用到机械及其基础上,引起振动,产生噪音,加快轴承磨损,缩短机械寿命,严重时能造成破坏性事故,为此,必须对转子进行平衡,使其达到允许的平衡精度等级,使因此产生的机械振动幅度降在允许的范围内。
我公司拥有20KG至50000KG各种型号规格的动平衡机和现场动平衡设备,可对全系列风机进行精确动平衡实验。其平衡精度等级控制在G2.0mm/s,优于机械标准(JB/T9101-1999)规定的6.3mm/s,提高了风机转子动平衡精度,确保风机平稳运行。
四、风机运行注意事项
1、安装运行前必须仔细阅读本注意事项;风机的安装、保养、维修必须有专人进行工作。
2、运转前,检查电机是否接地,严禁电机缺项、漏电、过载运行,绝缘电阻是否符合要求。
3、电机接线必须由专业电工作业,风机安装、保养、维修时必须切断电源,严禁风机在运转时进行保养维修。
4、风机安装时,不得磕碰极损坏风机,不得对风机施焊。
5、射流风机的安装除了满足隧道设计要求外,还应保证风机轴线与隧道中心线平行,否则将增加风速损失。
6、多台风机使用时,为减小对电网的冲击,应逐台启动,如为直接启动一般间隔120S。
7、射流风机正反向转换时,应等叶轮完全停止后在进行反向运转。
8、单向射流风机的转动方向和出风方向按铭牌标示。
9、对于双向射流风机,铭牌所标示的旋转方向和出风口方向为正传方向。
SDS系列单向单速及单向双速射流风机
1、SDS单向系列射流风机型号标示说明

2、SDS-I单向单速(K)系列射流风机参数表
|
机号 № |
电机级数 |
转速r/min |
叶片角度 |
风量m3/s |
出口风速m/s |
轴向推力N |
配用功率KW |
噪声 dB(A) |
|
4K |
2P |
2900 |
a 1 |
3.0 |
23.9 |
102 |
2.2 |
73 |
|
a 2 |
2.7 |
21.5 |
82 |
1.5 |
70 |
|||
|
a 3 |
2.4 |
19.1 |
68 |
1.1 |
68 |
|||
|
a 4 |
2.0 |
15.9 |
46 |
0.75 |
68 |
|||
|
5K |
2P |
2900 |
a 1 |
6.3 |
32.1 |
245 |
7.5 |
75 |
|
a 2 |
5.8 |
29.6 |
210 |
5.5 |
73 |
|||
|
a 3 |
5.0 |
25.5 |
155 |
4 |
72 |
|||
|
a 4 |
4.1 |
20.9 |
107 |
2.2 |
71 |
|||
|
5.6K |
2P |
2900 |
a 1 |
8.4 |
34.1 |
340 |
11 |
73 |
|
a 2 |
7.6 |
30.9 |
280 |
7.5 |
71 |
|||
|
a 3 |
6.7 |
27.2 |
210 |
5.5 |
69 |
|||
|
a 4 |
6.0 |
24.4 |
175 |
4 |
67 |
|||
|
6.3K |
2P |
2900 |
a 1 |
14 |
42 |
600 |
18.5 |
75 |
|
a 2 |
13 |
40 |
520 |
15 |
74 |
|||
|
a 3 |
12 |
36 |
420 |
11 |
74 |
|||
|
a 4 |
10.5 |
31.5 |
320 |
7.5 |
72 |
|||
|
a 5 |
9.5 |
28.6 |
255 |
5.5 |
72 |
|||
|
7.1K |
2P |
2900 |
a 1 |
17.5 |
40 |
660 |
22 |
75 |
|
a 2 |
16.5 |
38.8 |
645 |
18.5 |
74 |
|||
|
a 3 |
15 |
36 |
535 |
15 |
74 |
|||
|
a 4 |
13 |
33 |
425 |
11 |
74 |
|||
|
a 5 |
12 |
30 |
330 |
7.5 |
73 |
|||
|
8K |
4P |
1470 |
a 1 |
16.5 |
32 |
530 |
15 |
71 |
|
a 2 |
15 |
29.5 |
455 |
11 |
70 |
|||
|
a 3 |
14 |
27 |
360 |
7.5 |
70 |
|||
|
a 4 |
12.6 |
24.5 |
300 |
5.5 |
69 |
|||
|
a 5 |
10 |
20 |
210 |
4 |
68 |
|
机号 № |
电机级数 |
转速r/min |
叶片角度 |
风量m3/s |
出口风速m/s |
轴向推力N |
配用功率KW |
噪声 dB(A) |
|
9K |
4P |
1470 |
a 1 |
24 |
37 |
850 |
22 |
75 |
|
a 2 |
22 |
34.5 |
720 |
18.5 |
74 |
|||
|
a 3 |
19.8 |
31.6 |
595 |
15 |
74 |
|||
|
a 4 |
17 |
28 |
520 |
11 |
73 |
|||
|
a 5 |
16 |
24.8 |
395 |
7.5 |
70 |
|||
|
10K |
4P |
1470 |
a 1 |
30 |
38 |
1100 |
30 |
75 |
|
a 2 |
25 |
31.5 |
880 |
22 |
74 |
|||
|
a 3 |
24 |
29.5 |
760 |
18.5 |
74 |
|||
|
a 4 |
22 |
28.5 |
660 |
15 |
72 |
|||
|
a 5 |
21 |
26.5 |
550 |
11 |
71 |
|||
|
11.2K |
4P |
1470 |
a 1 |
39 |
41 |
1650 |
55 |
75 |
|
a 2 |
37.5 |
39 |
1500 |
45 |
75 |
|||
|
a 3 |
36.5 |
37 |
1350 |
37 |
72 |
|||
|
a 4 |
33 |
34 |
1090 |
30 |
71 |
|||
|
a 5 |
30 |
31 |
900 |
22 |
70 |
|||
|
a 6 |
26.8 |
28 |
705 |
15 |
69 |
|||
|
12.5K |
4P |
1470 |
a 1 |
50 |
43 |
2200 |
75 |
76 |
|
a 2 |
47 |
39.5 |
1850 |
55 |
75 |
|||
|
a 3 |
45 |
37.5 |
1680 |
45 |
75 |
|||
|
a 4 |
41 |
34 |
1320 |
37 |
74 |
|||
|
a 5 |
36 |
30 |
975 |
22 |
72 |
|||
|
a 6 |
33 |
28 |
855 |
18.5 |
70 |
|||
|
6P |
960 |
a 1 |
28 |
23 |
630 |
15 |
68 |
|
|
a 2 |
26 |
21.5 |
540 |
11 |
67 |
|||
|
14K |
6P |
960 |
a 1 |
46.5 |
32.5 |
1600 |
45 |
75 |
|
a 2 |
44 |
30 |
1450 |
37 |
75 |
|||
|
a 3 |
42.5 |
28 |
1190 |
30 |
75 |
|||
|
a 4 |
39 |
26 |
950 |
22 |
74 |
|||
|
a 5 |
33.5 |
22 |
720 |
15 |
72 |
|||
|
a 6 |
30.5 |
20 |
580 |
11 |
69 |
|||
|
8P |
740 |
a 1 |
32 |
20.5 |
660 |
15 |
70 |
|
|
a 2 |
29 |
19.5 |
550 |
11 |
69 |
|||
|
16K |
6P |
960 |
a 1 |
62 |
31.5 |
1980 |
55 |
75 |
|
a 2 |
56 |
28.6 |
1600 |
45 |
74 |
|||
|
a 3 |
51 |
25.5 |
1240 |
30 |
73 |
|||
|
a 4 |
46 |
23 |
1020 |
22 |
70 |
|||
|
8P |
740 |
a 1 |
46.8 |
23.5 |
1100 |
30 |
71 |
|
|
a 2 |
43 |
21.8 |
890 |
18.5 |
69 |
|
机号 № |
电机级数 |
转速r/min |
叶片角度 |
风量m3/s |
出口风速m/s |
轴向推力N |
配用功率KW |
噪声 dB(A) |
|
18K |
6P |
960 |
a 1 |
81 |
32 |
2640 |
75 |
75 |
|
a 2 |
76 |
29 |
2010 |
55 |
73 |
|||
|
a 3 |
63 |
25 |
1550 |
37 |
73 |
|||
|
a 4 |
60 |
23 |
1380 |
30 |
70 |
|||
|
8P |
740 |
a 1 |
61 |
24 |
1480 |
37 |
72 |
|
|
a 2 |
53.5 |
21.6 |
1180 |
30 |
69 |
3、SDS-II单速双向(K)系列射流风机参数表
|
机号 № |
工作转速r/min |
出口风量m3/s |
出口风速m/s |
轴向推力 N |
配用功率 KW |
噪声 dB(A) |
|
6.3K |
2930/1470 |
12.5/6.1 |
39/19 |
500/120 |
15/5 |
77/65 |
|
11.5/5.5 |
35/17.5 |
400/100 |
11/4 |
75/63 |
||
|
6.7 K |
2930/1470 |
14 |
40/25 |
520/150 |
15/5 |
80/71 |
|
13 |
37/23 |
450/130 |
11/4 |
78/65 |
||
|
7.1 K |
2930/1470 |
15.5/8.1 |
39/19 |
600/160 |
18.5/7.5 |
80/72 |
|
14/7 |
35.5/17 |
550/130 |
15/5 |
78/66 |
||
|
8 K |
2930/1470 |
17.5/14.5 |
35/27 |
660/460 |
22/11 |
83/75 |
|
15/1.5 |
30/23 |
630/270 |
18.5/7.5 |
81.5/71 |
||
|
9 K |
1470/980 |
22.5/15 |
35/23.5 |
825/370 |
24/11 |
79/70 |
|
18.5/13.5 |
29/21.5 |
560/300 |
18.5/7.5 |
75/68 |
||
|
10 K |
1470/980 |
28/19 |
35.5/24 |
1100/470 |
30/15 |
80/70 |
|
25/16 |
29/20 |
650/350 |
18.5/7.5 |
76/70 |
||
|
11.2K |
1470/980 |
35/23 |
35/23 |
1350/570 |
37/15 |
80/71 |
|
32/21 |
32.5/21 |
1100/450 |
30/11 |
79/71 |
||
|
12.5K |
1470/980 |
45/30 |
37/25 |
1630/830 |
45/18.5 |
82/78 |
|
40/25 |
33/21 |
1300/550 |
37/15 |
81/73 |
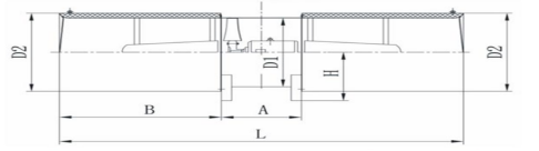
4、SDS-I单向系列射流风机外形及安装尺寸

|
机号 |
D1 |
D2 |
L |
A |
B |
H |
N-φ |
|
4K |
410 |
530 |
1360 |
430 |
500 |
370 |
4-8 |
|
5K |
510 |
630 |
1500 |
500 |
500 |
410 |
4-10 |
|
机号 |
D1 |
D2 |
L |
A |
B |
H |
N-φ |
|
6.3K |
640 |
750 |
1890 |
630 |
630 |
480 |
4-12 |
|
|
720 |
840 |
2050 |
710 |
630 |
520 |
4-14 |
|
8K |
810 |
930 |
2300 |
800 |
700 |
580 |
4-16 |
|
9K |
910 |
1110 |
2500 |
900 |
700 |
620 |
4-18 |
|
10K |
1010 |
1210 |
2700 |
1000 |
700 |
710 |
4-20 |
|
11.2K |
1130 |
1330 |
3000 |
1120 |
760 |
780 |
4-22 |
|
12.5K |
1260 |
1460 |
3320 |
1260 |
800 |
830 |
4-24 |
|
14K |
1410 |
1610 |
3600 |
1400 |
800 |
900 |
4-27 |
|
16K |
1610 |
1810 |
4000 |
1600 |
800 |
1000 |
4-30 |
|
18K |
1810 |
2010 |
4400 |
1800 |
800 |
1150 |
4-32 |
SDS双向系列射流风机
1、SDS单向系列射流风机型号标示说明

2、SDS双向(R)系列射流风机参数表
|
机号 № |
电机级数 |
转速r/min |
叶片角度 |
风量m3/s |
出口风速m/s |
轴向推力N |
配用功率KW |
噪声 dB(A) |
|
4R |
2P |
2900 |
a 1 |
3.0 |
23.9 |
102 |
2.2 |
73 |
|
a 2 |
2.7 |
21.5 |
82 |
1.5 |
70 |
|||
|
a 3 |
2.4 |
19.1 |
68 |
1.1 |
68 |
|||
|
a 4 |
2.0 |
15.9 |
46 |
0.75 |
68 |
|||
|
5R |
2P |
2900 |
a 1 |
6.3 |
32.1 |
245 |
7.5 |
75 |
|
a 2 |
5.8 |
29.6 |
210 |
5.5 |
73 |
|||
|
a 3 |
5.0 |
25.5 |
155 |
4 |
72 |
|||
|
a 4 |
4.1 |
20.9 |
107 |
2.2 |
71 |
|||
|
5.6R |
2P |
2900 |
a 1 |
8.4 |
34.1 |
340 |
11 |
73 |
|
a 2 |
7.6 |
30.9 |
280 |
7.5 |
71 |
|||
|
a 3 |
6.7 |
27.2 |
210 |
5.5 |
69 |
|||
|
a 4 |
6.0 |
24.4 |
175 |
4 |
67 |
|||
|
6.3R |
2P |
2900 |
a 1 |
15 |
41.5 |
610 |
18.5 |
74 |
|
a 2 |
13 |
40 |
520 |
15 |
72 |
|||
|
a 3 |
11 |
36 |
410 |
11 |
71 |
|||
|
a 4 |
10 |
31 |
315 |
7.5 |
71 |
|||
|
a 5 |
9 |
28.5 |
255 |
5.5 |
70 |
|
机号 № |
电机级数 |
转速r/min |
叶片角度 |
风量m3/s |
出口风速m/s |
轴向推力N |
配用功率KW |
噪声 dB(A) |
|
7.1R |
2P |
2900 |
a 1 |
18 |
41.5 |
670 |
22 |
74 |
|
a 2 |
16.5 |
40.5 |
640 |
18.5 |
73 |
|||
|
a 3 |
14.5 |
36.5 |
530 |
15 |
72 |
|||
|
a 4 |
13.5 |
32.5 |
420 |
11 |
72 |
|||
|
a 5 |
11.5 |
28.5 |
325 |
7.5 |
71 |
|||
|
8R |
4P |
1470 |
a 1 |
16.5 |
32 |
525 |
15 |
60 |
|
a 2 |
15.5 |
30 |
455 |
11 |
59 |
|||
|
a 3 |
14 |
27 |
360 |
7.5 |
58 |
|||
|
a 4 |
12.5 |
25 |
285 |
5.5 |
56 |
|||
|
a 5 |
10 |
20 |
210 |
4 |
54 |
|||
|
9R |
4P |
1470 |
a 1 |
23.5 |
36.5 |
850 |
22 |
66 |
|
a 2 |
22 |
33.5 |
720 |
18.5 |
65 |
|||
|
a 3 |
20 |
31 |
590 |
15 |
64 |
|||
|
a 4 |
16.5 |
25.5 |
400 |
11 |
62 |
|||
|
a 5 |
14 |
21 |
350 |
7.5 |
61 |
|||
|
10R |
4P |
1470 |
a 1 |
30 |
38 |
1100 |
30 |
70 |
|
a 2 |
25 |
32 |
880 |
22 |
68 |
|||
|
a 3 |
24 |
30.5 |
780 |
18.5 |
67 |
|||
|
a 4 |
23 |
29 |
655 |
15 |
65 |
|||
|
a 5 |
21 |
26.5 |
640 |
11 |
64 |
|||
|
11.2R |
4P |
1470 |
a 1 |
38 |
40 |
1700 |
55 |
74 |
|
a 2 |
36 |
38.5 |
1380 |
45 |
72 |
|||
|
a 3 |
35 |
36.5 |
1230 |
37 |
71 |
|||
|
a 4 |
33 |
33.5 |
1080 |
30 |
70 |
|||
|
a 5 |
29 |
30.5 |
800 |
22 |
69 |
|||
|
a 6 |
26.5 |
26.5 |
630 |
18.5 |
68 |
|||
|
12.5R |
4P |
1470 |
a 1 |
49 |
40 |
2280 |
75 |
74 |
|
a 2 |
46 |
37.5 |
1980 |
55 |
72 |
|||
|
a 3 |
43 |
35 |
1440 |
45 |
72 |
|||
|
a 4 |
40 |
33 |
1250 |
37 |
71 |
|||
|
a 5 |
34 |
27 |
860 |
22 |
70 |
|||
|
a 6 |
32 |
26 |
740 |
18.5 |
70 |
|||
|
6P |
960 |
a 1 |
28 |
23 |
630 |
15 |
64 |
|
|
a 2 |
26 |
21 |
540 |
11 |
62 |
|
机号 № |
电机级数 |
转速r/min |
叶片角度 |
风量m3/s |
出口风速m/s |
轴向推力N |
配用功率KW |
噪声 dB(A) |
|
14R |
4P |
1470 |
a 1 |
47 |
32.5 |
1650 |
45 |
70 |
|
a 2 |
45 |
31 |
1450 |
37 |
68 |
|||
|
a 3 |
43 |
29 |
1200 |
30 |
66 |
|||
|
a 4 |
39 |
26 |
955 |
22 |
66 |
|||
|
a 5 |
34 |
23 |
720 |
15 |
65 |
|||
|
a 6 |
31 |
21 |
590 |
11 |
64 |
|||
|
6P |
960 |
a 1 |
32 |
21 |
660 |
15 |
65 |
|
|
a 2 |
30 |
20 |
540 |
11 |
64 |
|||
|
16R |
6P |
960 |
a 1 |
63 |
32 |
1970 |
55 |
72 |
|
a 2 |
56 |
29 |
1600 |
45 |
71 |
|||
|
a 3 |
51 |
26 |
1250 |
30 |
69 |
|||
|
a 4 |
46 |
23 |
1020 |
22 |
68 |
|||
|
8P |
740 |
a 1 |
44 |
24 |
1100 |
30 |
65 |
|
|
a 2 |
42 |
21 |
890 |
22 |
63 |
|||
|
18R |
6P |
960 |
a 1 |
81 |
33 |
2650 |
75 |
74 |
|
a 2 |
73 |
30 |
2060 |
55 |
72 |
|||
|
a 3 |
63 |
25.5 |
1550 |
37 |
70 |
|||
|
a 4 |
59 |
24 |
1360 |
30 |
70 |
|||
|
8P |
740 |
a 1 |
60 |
25 |
1460 |
37 |
69 |
|
|
a 2 |
53 |
21 |
1150 |
30 |
68 |
3、SDS双向(R)系列射流风机外形及安装尺寸

|
机号 |
D1 |
D2 |
L |
A |
B |
H |
N-φ |
|
4 R |
410 |
530 |
1360 |
430 |
500 |
320 |
4-10 |
|
5 R |
510 |
630 |
1500 |
500 |
500 |
360 |
4-12 |
|
6.3 R |
640 |
750 |
1890 |
630 |
630 |
430 |
4-14 |
|
7.1 R |
720 |
840 |
2050 |
710 |
630 |
490 |
6-16 |
|
8 R |
810 |
930 |
2300 |
800 |
700 |
520 |
6-18 |
|
9 R |
910 |
1100 |
2500 |
900 |
700 |
570 |
6-20 |
|
机号 |
D1 |
D2 |
L |
A |
B |
H |
N-φ |
|
10 R |
1010 |
1210 |
2700 |
1000 |
700 |
660 |
6-22 |
|
11.2R |
1130 |
1330 |
3000 |
1120 |
760 |
730 |
6-22 |
|
12.5R |
1260 |
1460 |
3320 |
1260 |
800 |
780 |
8-24 |
|
14 R |
1410 |
1610 |
3600 |
1400 |
800 |
860 |
8-27 |
|
16 R |
1610 |
1810 |
4000 |
1600 |
800 |
950 |
8-30 |
|
18 R |
1810 |
2010 |
4400 |
1800 |
800 |
1100 |
8-32 |
© Copyright 2021 山东盛通环保科技有限公司 版权所有 电话:13455358195 邮箱:727560311@qq.com
网址:www.suidaofan.cn 备案号:鲁ICP备17006832号-9